Bungalow 13 vč. pozemku
Rodinný dům je dispozičně řešen jako 3+KK. Je vhodný pro 2 až 4 člennou rodinu. Domek je oblíbený u mladších rodin s dětmi a u manželských párů, které děti nevychovávají. K oblíbenosti především přispívá výrazně nižší cena oproti novým srovnatelným novým bytům. Domek navíc poskytuje výhodu v podobě soukromí a vlastního pozemku(zahrádky).
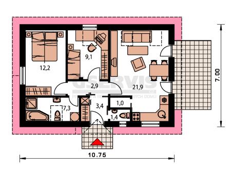
Interiér vévodí obývací pokoj s kuchyňským koutem (30,5 m2), ze kterého vstupujeme na terasu. Kuchyňský kout je doplněn o praktickou spíž (1,4 m2). Levá část domu nabízí 2 pokoje - ložnice a dětský pokoj (oba 12,9 m2). Komfort nabízí prostorná koupelna (4,9 m2) a samostatné WC (1,5 m2).
Celková zastavěná plocha domu: 88 m2
Celková užitná plocha domu: 71 m2
Cena včetně pozemku: Kč 2.660.000,-
